| 产品标题:LZZBJ18-10(G)/150、10/185、20/225、20/180 型 电流互感器(AS电流互感器) 产品ID:VIB20091214152619734 品 牌:VABO华波互感器 所在地:中国 上海 价 格:面议 (大量采购价格面议) 库存状态:货期待查 更新日期:2025-11-25 1:19:12 咨询电话:(+86)021-51699285 咨询Q Q: 2695337323 |
LZZBJ18-10(G)/150、10/185、20/225、20/180 型 电流互感器(AS电流互感器)
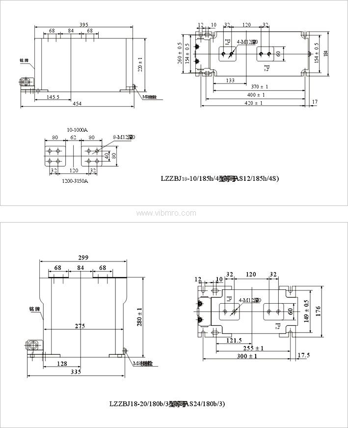
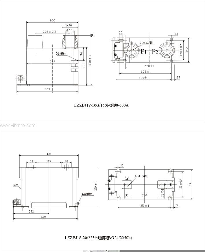
LZZBJ18-10(G)/150b/2、/4型电流互感器
1、概 述:
LZZBJ18-10(G)/150b/2、/4型系列电流互感器为支柱式环氧树脂浇注绝缘户内型全工况产品,适用于中置式开关柜或其他型式开关柜中,在额定频率为50Hz、额定电压为10kV及以下的电力系统中作电流、电能测量及继电保护用。
2、技术数据:
2.1 互感器的技术指标均符合IEC标准和GB1208-1997的
要求,具体参数详见下表: (cosφ=0.8)
|
额定一次电流(A) |
额定容量(VA) |
额定短时热电流 |
额定动稳定电流 | ||
|
0.2级 |
0.5级 |
10P10或 10P15级 | |||
|
5~150 |
10 |
15 |
15 |
150 I1n |
382 I1n |
|
200~500 |
45 |
114.75 | |||
|
600~1000 |
100 |
255 | |||
|
1250~1500 |
15 |
15 |
15 |
140 |
357 |
|
2000 |
175 |
446 | |||
2.2 额定二次电流5或1A, 额定绝缘水平:12/42/75kV。









